Описание
Характеристики
Отзывы
Описание
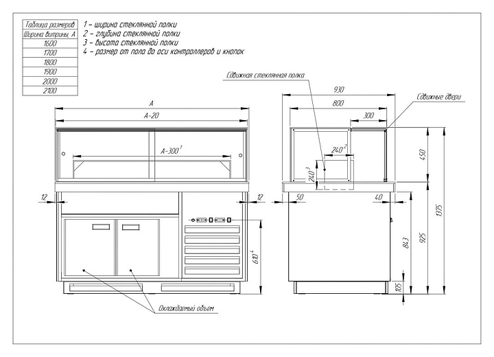
Кондитерская холодильная витрина Finist Maria Mwv-19-9 предназначена для экспозиции и временного хранения десертов, выпечки, кондитерских изделий, требующих определенный температурный режим +2…+8°С. В стандартном оснащении комплектуется боковыми стеклами и фасадами. Выкладка десертов осуществляется на выдвижную стеклянную полку и столешницу из дерева.
Особенности:?
- Для хранения запаса продукции в витрину встроен холодильный объем (температура внутри накопителя: +2 … +8°С)
- Микропроцессорный блок управления
- Динамическое охлаждение
- Автоматическая оттайка испарителя
- Просветленное стекло
- Двери-купе из оргстекла
- Фасады МДФ (любой цвет по каталогу RAL)
- Материал столешницы: дерево (лак)
Дополнительные характеристики:
- Мощность: 1,5 кВт
- Напряжение питания: 220В/50Гц
Характеристики
Бренд
Finist
Страна производства
Россия
Напряжение
220 В
Ширина
1900 мм
Глубина
930 мм
Высота
1375 мм
Конструкция
с прямым стеклом
Тип устройства
Напольная витрина
Отзывы
Отзывов еще никто не оставлял
